Nosotros
Valores
Proyectos
Book
Contacto
Nosotros
Valores
Proyectos
Book
Contacto
ES
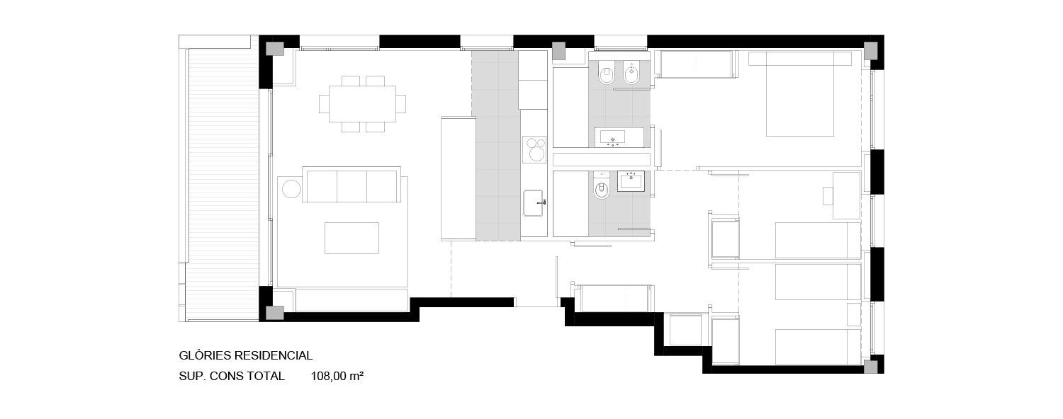
Glòries
22@, Barcelona
2020
Joan Pascual
Arquitecto